︎
AFLPMW
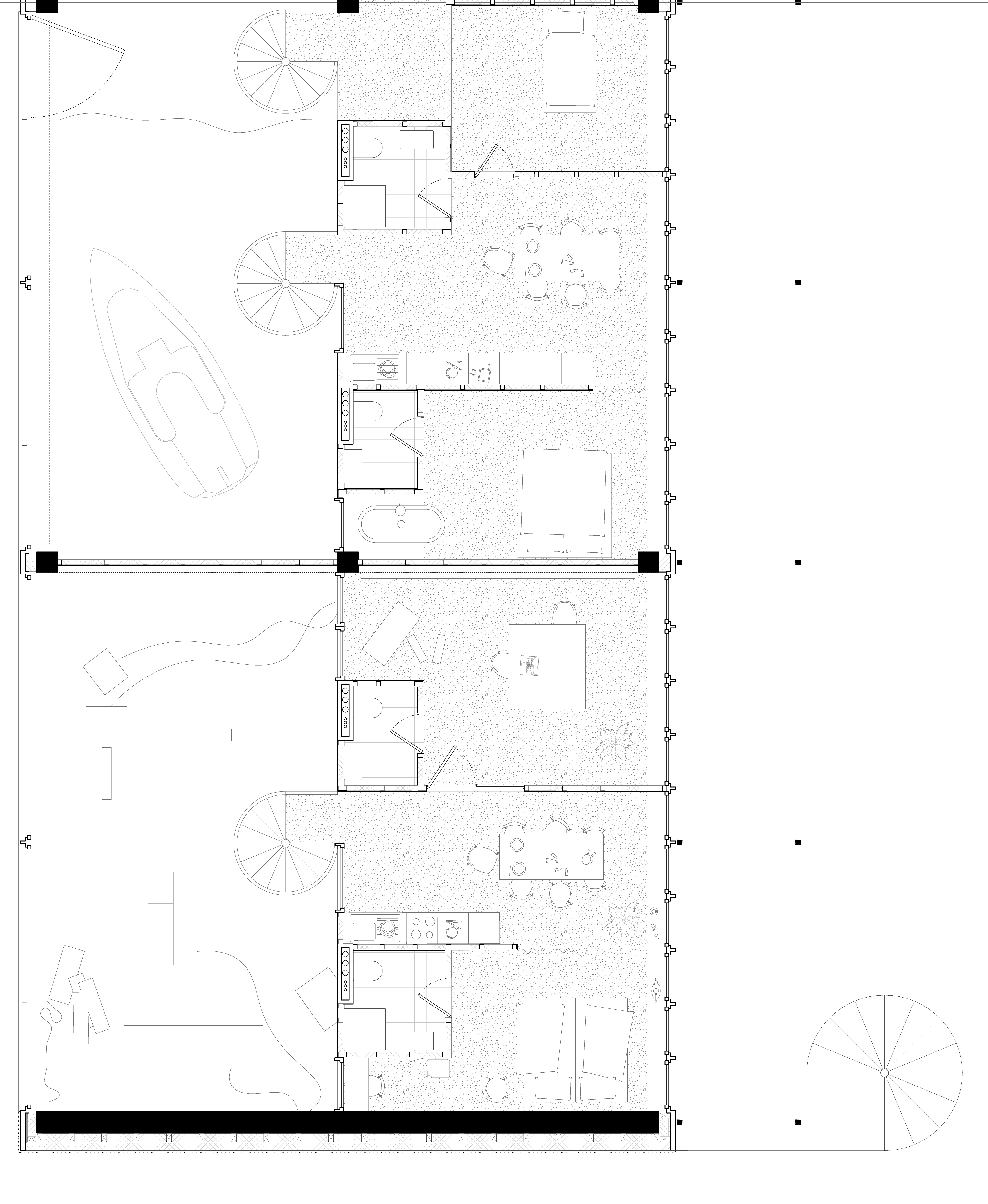
Typologien
< Berliner Inseln
Grundstücke >