︎

AFLPMW


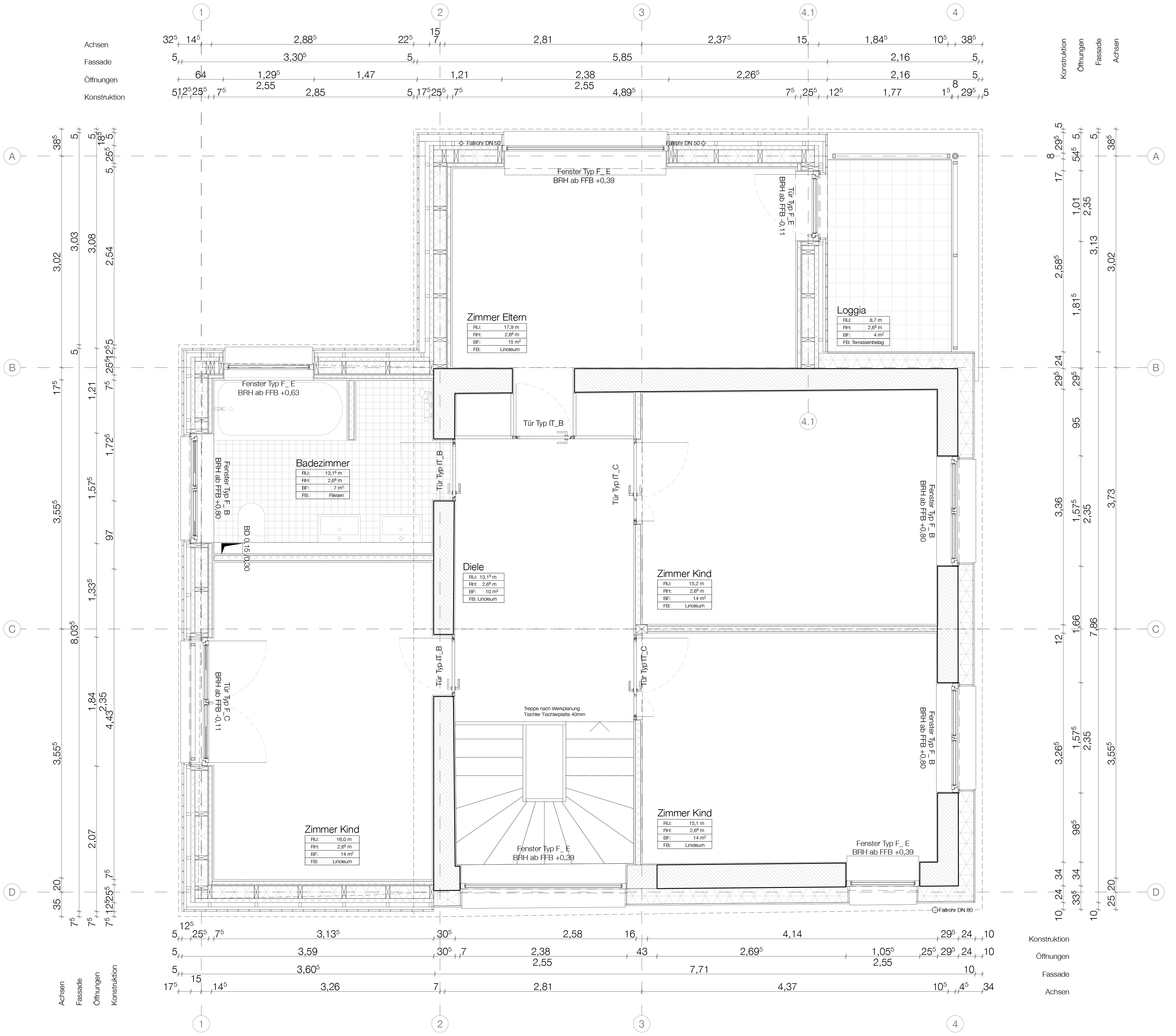
Erdgeschoss Grundriss















Info